ポイント
- ・新規フルリノベーション物件(2026年3月完了)
- ・3階北西・北東・南東の3方角住戸のため日照・通風良好
- ・2面採光の洋室、出窓のある玄関、豊富な収納(WIC、物入等)
- ・ペット飼育可(細則あり)、「反町」駅徒歩4分
価格・費用
| 価格 | 5,790 万円 |
| 仲介手数料 | 0 円 |
|
一般的なポータルサイトから仲介会社を介した場合は、 仲介手数料が197万円かかります |
|
| 管理費 | 14,480 円/月 |
| 修繕積立金 | 11,910 円/月 |
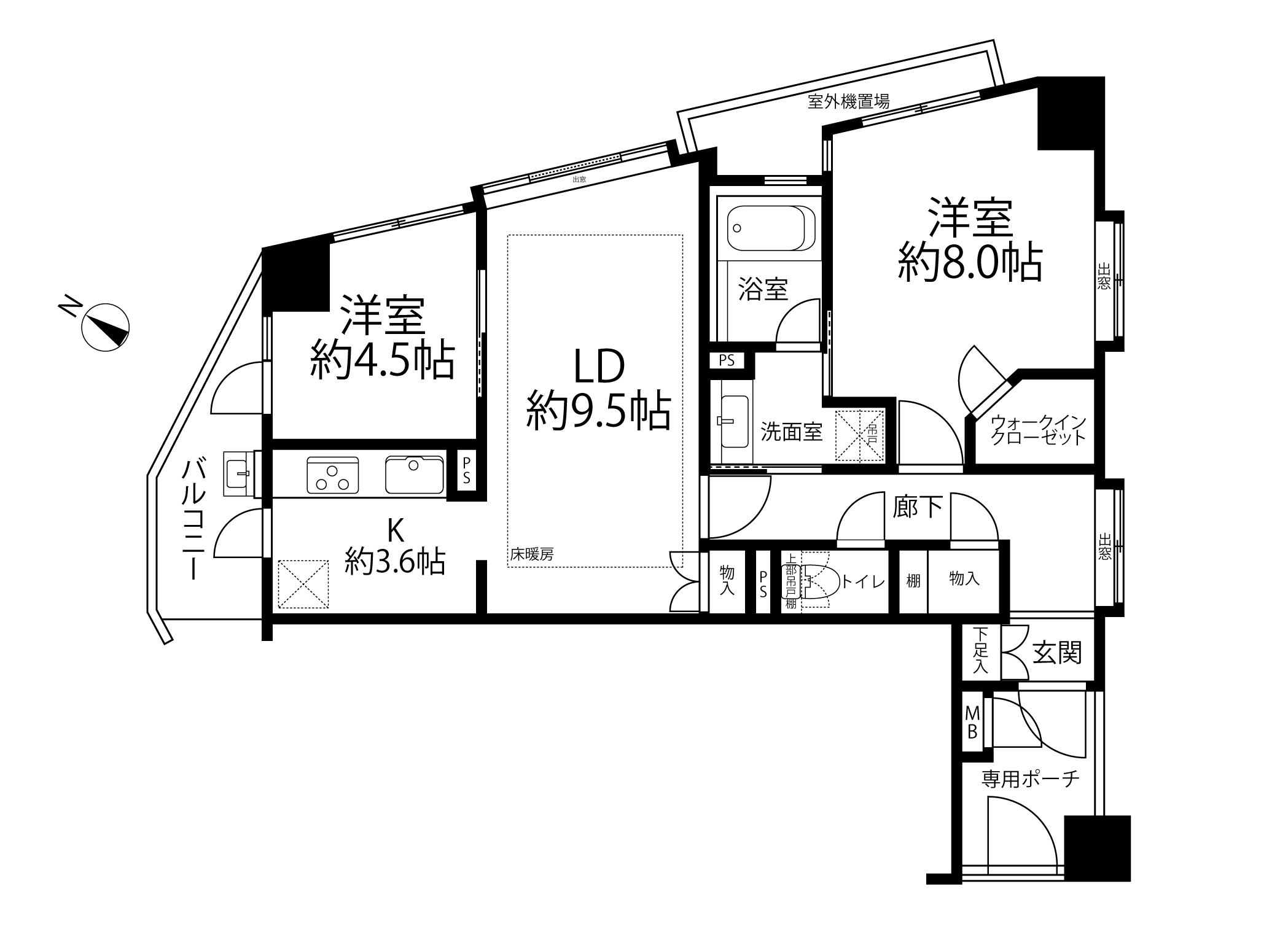
間取り・広さ
リノベーション内容:全居室クロス・フローリング張替、建具・下足入交換、設備交換(キッチン、ユニットバス、洗面台、トイレ、給湯器)
- 間取り
- 2LDK
- 専有面積
- 61.1 ㎡
- その他面積
- バルコニー面積: 4.66㎡
- 向き
- 北西
所在地
- 所在地
- 神奈川県横浜市神奈川区泉町13-2
- 交通
- 東急東横線 「反町」 徒歩4分
- 学区データについて
-
学区データは必ず正確とは限りません。詳細に関しては売主または各自治体の教育委員会にご確認ください。
- 学区データについて
-
学区データは必ず正確とは限りません。詳細に関しては売主または各自治体の教育委員会にご確認ください。
物件情報
- 物件名
- ヴェルビュ横浜反町
- 所在階 / 階建て
- 3階部分 / 7階建
- 構造
- RC
- 総戸数
- 25戸
- 築年月
- 2000年09月 (築26年)
- 現況 / 入居時期
- 空き / 即入居可
- 土地権利
- 所有権
- 管理会社
- 株式会社大京アステージ
- 管理方式
- 委託(通勤)
- ペット
- 可
詳細情報
- エレベータ
- あり
- 駐車場
- 27,000 円/月
- 駐輪場
- 2,400 円/年
- 用途地区
- 近隣商業
- 位置
- 角部屋
- 取引形態
- 売主
- 更新予定日
- 2026年4月03日
- 物件コード
- 10025412809
売り主
- 企業名
- 株式会社すむたす
- 問い合わせ
- 0120-540-884 0120-540-884
- 営業時間
- 10:00 ~ 19:00
- 店舗所在地
- 東京都中央区日本橋3丁目9‐1 日本橋三丁目スクエア2階







